リゾートマンションの物件情報 | 株式会社アメニティ
兵庫県、岡山県のリゾートマンションを多数掲載。株式会社アメニティがリゾート物件情報を提供します。
検索
メインメニュー
メインコンテンツへ移動
サブコンテンツへ移動
ホーム
物件の情報について
カテゴリ: マリンプラザ2000
価格
面積
間取
住所
築年月
オーシャンビューの中古リゾートマンション|マリンプラザ2000|備前市|日生町|2LDK|3階部分
up
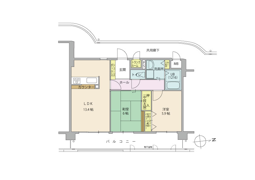
1080万円
2LDK 63.00m²
物件の詳細を見る
価格
1080万円
リゾートマン
間取
2LDK
共益費・管理費
5670円
駐車場
近隣 3500円
所在地
岡山県備前市 日生町日生
交通
JR赤穂線日生駅 徒歩20分
築年月
2000/03
構造
RC
面積
63.00m² 土地 1857.77m²
階数
地上 7階
物件番号
価格
面積
間取
住所
築年月
前のページにもどる
Fudousan Plugin Ver.1.4.2